ZAČÍNAME! Nebojte sa pridať ponuku alebo dopyt a buďte medzi prvými. Od spustenia portálu 1.12.2025 máme 0 unikátnych návštevníkov. Zdieľajte nás prosím, pomôžete nám rásť! Pridať inzerát
Späť na zoznam
Pronájem Komerční

Pronájem skladového prostoru 1159 m² Plynárenská, Příbram

Plynárenská, Příbram 261 01

Nájomné

110 Kč/m²

Parametre nehnuteľnosti

Plocha
1159.45 m²
Stav
Dobrý
Vybavenie
Vybavené
Vlastníctvo
Osobné
Dostupné od
01. 04. 2026
Typ priestoru
Sklad
MHD
4 min pešo
Číslo inzerátu
f5689c19

Čo táto nehnuteľnosť ponúka?

Parkovanie Internet

Popis nehnuteľnosti

nabízíme moderní skladové a kancelářské prostory vhodné pro výrobní, logistické či obchodní společnosti.

 

Základní údaje:

•             Nájemné sklad: 110kč/m2

•             Parkování: velký počet míst - dle dohody.

•             Dopravní dostupnost: 4 minuty pěšky od zastávky Příbram,Plynárenská

•             Minimální doba nájmu: 1rok s možností prodloužení

•             Možnost úprav prostor dle potřeb nájemce: Ano

 

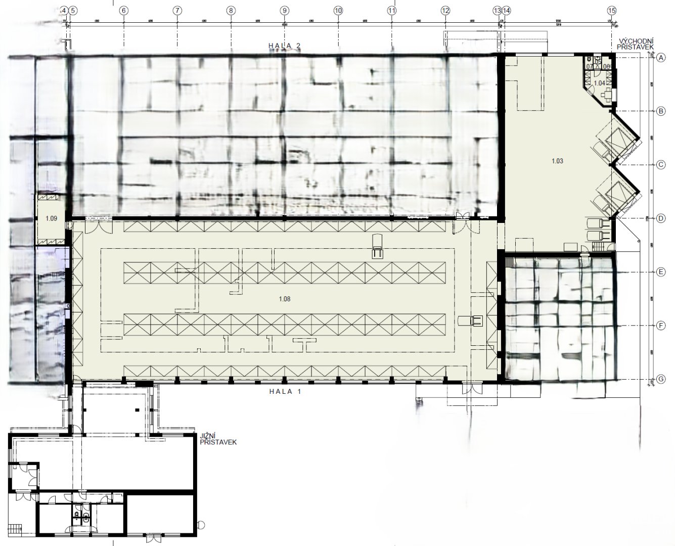
SKLADOVÉ PROSTORY - 1 159,45 m²

Parametry:

•             Světla výška: 5m

•             Typ podlahy skladu: házený a leštěný drákobeton

•             Nosnost podlahy: 2000kg/ m2

•             Vybavení: včetně regálového systému

•             Zateplení: NE

•             Nákladové vjezdy:

2x nakládací rampy SPEDOS vhodné pro vykládku přímo z auta

1x venkovní betovoná rampa s vraty

 

Volitelná možnost:

Jižní přístavek – 371,6 m²

Multifunkční prostor s infrastrukturou

 

Technické parametry:

Užitná plocha: 371,6 m²

Světlá výška: 3,0 m

Sociální zázemí: ano (kuchyňka, WC)

Vytápění: přípojka k dispozici

Voda: přípojka k dispozici

Poloha nehnuteľnosti

Načítavam polohu...

Kontaktovať inzerenta

V
Vojtěch Ježek
Inzerent

Pre zobrazenie kontaktu sa prihláste

Prihlásiť sa
Pridané: 23.01.2026
ID: f5689c19

Podobné nehnuteľnosti

Súvisiace nehnuteľnosti