ZAČÍNAME! Nebojte sa pridať ponuku alebo dopyt a buďte medzi prvými. Od spustenia portálu 1.12.2025 máme 0 unikátnych návštevníkov. Zdieľajte nás prosím, pomôžete nám rásť! Pridať inzerát
Späť na zoznam
Pronájem Komerční

Pronájem prostoru pro dílnu / sklad 362 m2

Boleslavská, Brandýs nad Labem-Stará Boleslav 250 01 (Stará Boleslav)

Nájomné

55 000 Kč / mesiac
152 Kč/m²

Parametre nehnuteľnosti

Plocha
362 m²
Stav
Veľmi dobrý
Vybavenie
Nevybavené
Vlastníctvo
Osobné
Vykurovanie
Lokálne plynové
Dostupné od
01. 04. 2026
Typ priestoru
Výrobný priestor
MHD
5 min pešo
Umiestnenie
okraj města
Číslo inzerátu
7ffa05b0

Čo táto nehnuteľnosť ponúka?

Výťah Parkovanie

Popis nehnuteľnosti

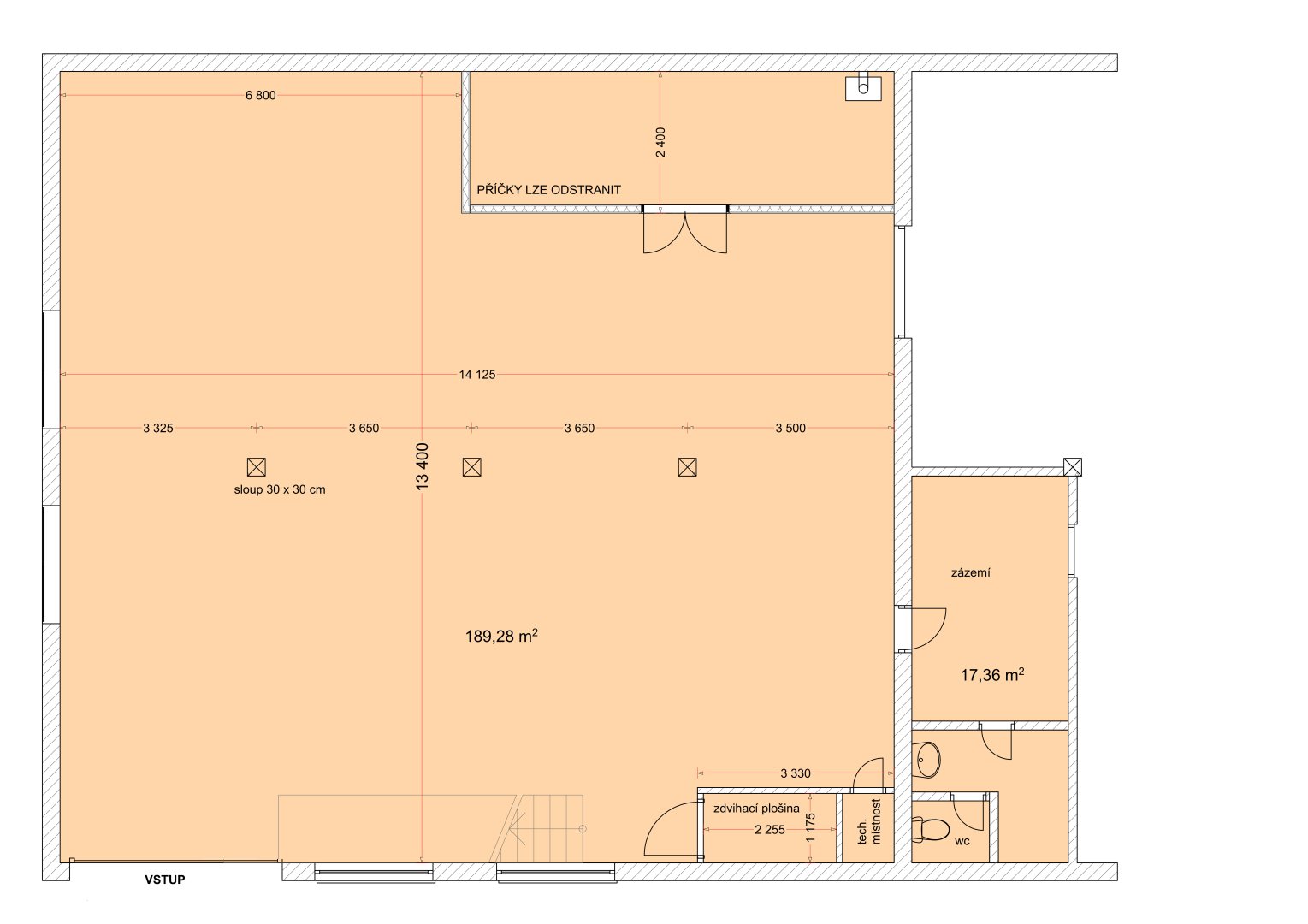
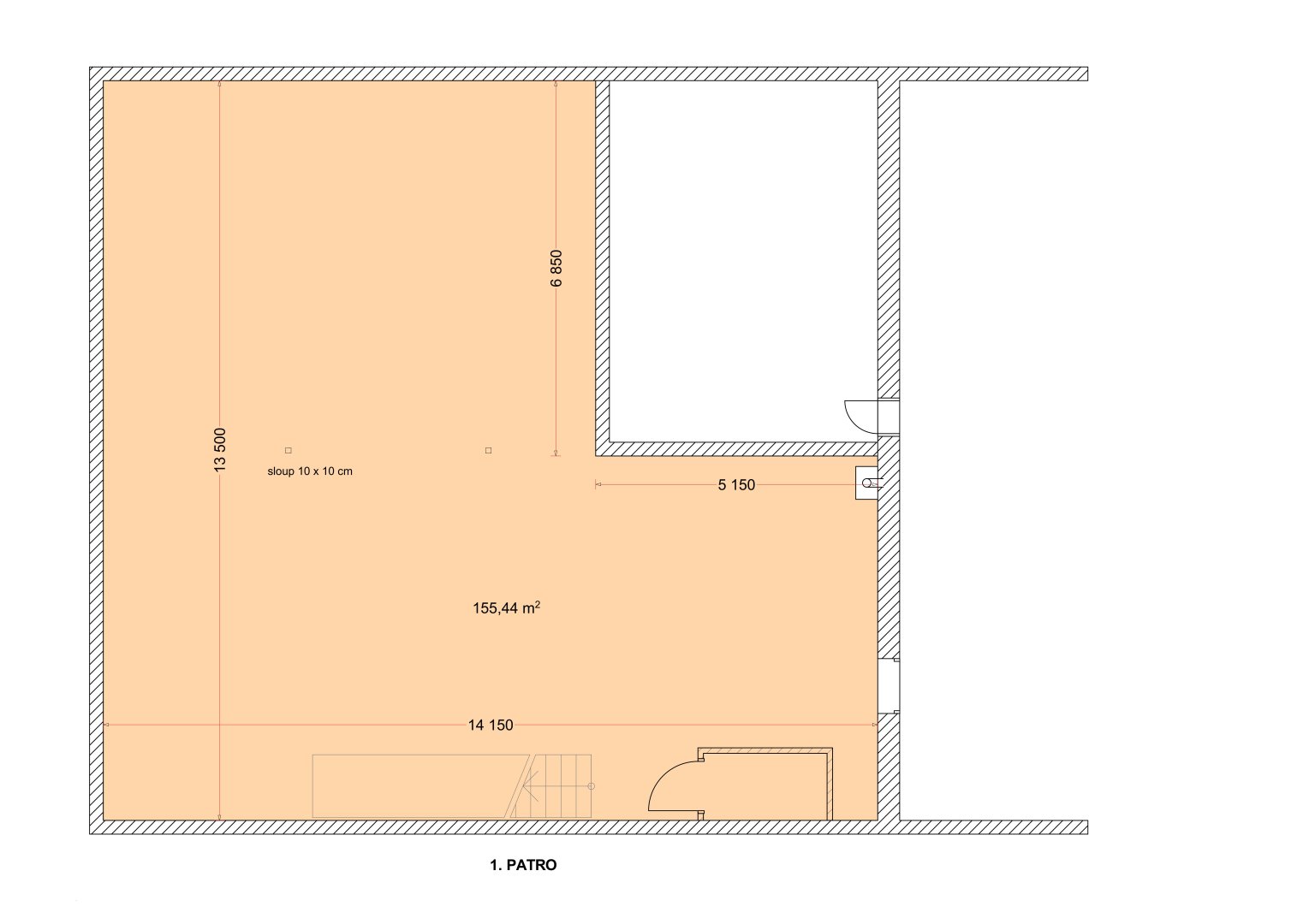
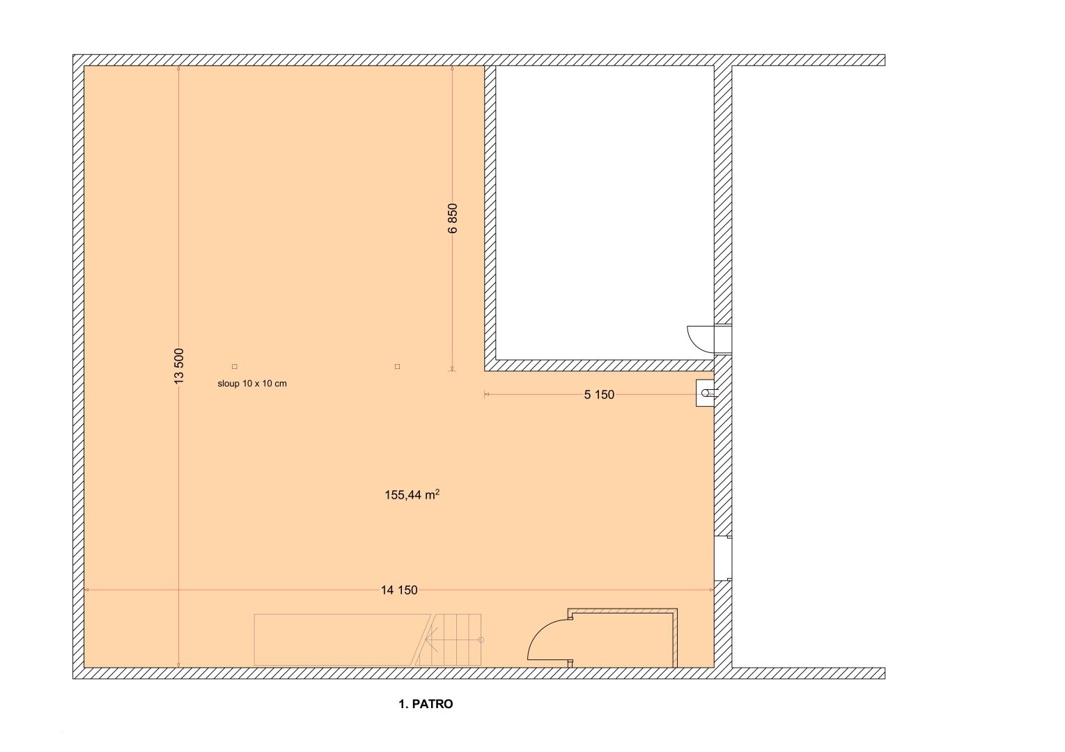
Prostory pro sklad nebo dílnu. Přímo u dálnice D10 k pronájmu podle potřeby a dohody. Čistá vytápěná plocha, výška přízemí 4 m. Výška v patře - šikmý strop od 2,4 m do 5 m. Do patra kovové schodiště a průmyslový výtah. Příkon 400V / 40A. Přípojky elektro možno upravit po dohodě. Sociální zázemí k dispozici. Vratná kauce po dohodě podle výpovědní lhůty (za 1 měsíc výpovědní lhůty = částka měsíčního nájmu). K dispozici podle dohody. 


K dispozici:


1) Prostor v přízemí 206,5 m2 s přístupem k sociálnímu zázemí. Z přízemí vede schodiště do 1. parta. Součástí je průmyslový výtah/plošina do 1. patra. Vstup vraty.

2) Prostor v 1. patře 155,5 m2. 


Cena nebytového prostoru celkem 55 000,- (152,- měsíčně za m2). V případě plátce DPH +21%.

Poloha nehnuteľnosti

Načítavam polohu...

Kontaktovať inzerenta

M
Miroslav Slavíček
Inzerent

Pre zobrazenie kontaktu sa prihláste

Prihlásiť sa
Pridané: 13.02.2026
ID: 7ffa05b0

Podobné nehnuteľnosti

Súvisiace nehnuteľnosti